今すぐ無料の会員登録で
閲覧可能物件数が
+100
営業時間: 9:00~18:00
定休日: 毎週火曜日・水曜日
NO IMAGE
現地
物件画像
NO IMAGE
周辺環境
QRコードをスキャンして携帯でもご覧になれます。

-

売地
1,200万円
    滋賀県大津市比叡平3丁目
    表示住所までのルート

    京阪本線 三条駅 バス 40分 「京阪バス三条線 比叡平三丁目」 停歩 4分 駅までのルート

    NEW現地見学会おすすめ会員限定
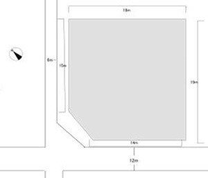
    土地面積
    333.59㎡[公簿]
    建ぺい率
    40%
    容積率
    200%
    建築条件
    なし
    今すぐ会員登録する資料請求お気に入りに追加
    お問い合わせ先: 0120-572-011
    電話でお問合せする
    物件情報
    価格
    1,200万円
    土地坪単価
    11.90万円
    路線価
    36,000円/㎡
    所在地
    滋賀県大津市比叡平3丁目
    交通

    京阪本線 三条駅 バス 40分 「京阪バス三条線 比叡平三丁目」 停歩 4分

    土地面積
    333.59㎡[公簿]
    地目
    宅地
    土地権利
    所有権
    土地現況
    更地
    地代
    なし
    建築条件
    なし
    都市計画
    市街化区域
    用途地域
    第一種中高層住居専用地域
    建ぺい率/容積率
    40%/200%
    国土法の届出
    不要
    地勢
    低地
    最適用途
    住宅用地
    セットバック
    なし
    私道負担
    なし
    接道状況
    二方(角地) 南西:幅員12.0m接面幅18.0m公道 北西:幅員19.0m接面幅6.0m公道
    地域地区
    風致地区
    引渡時期
    相談
    物件情報更新日
    2025年12月25日(物件情報更新日より14日以内に更新)
    物件コード
    58898
    取引態様
    仲介
    今すぐ会員登録する資料請求お気に入りに追加
    お問い合わせ先: 0120-572-011
    電話でお問合せする
    森田住宅株式会社
    森田住宅株式会社
    〒520-0846
    滋賀県大津市富士見台2番5号
    0120-572-011
    営業時間:9:00~18:00 定休日:毎週火曜日・水曜日
    ローンシミュレーション
    • {{error}}
    物件価格
    1,200万円
    借入予定額
    万円
    頭金
    万円
    ボーナス(1回分)
    万円
    返済期間
    ローン金利
    金利
    %
    毎月の支払額
    {{repayment_price}} 円
    スマートフォン版の表示に切り替える