今すぐ無料の会員登録で
閲覧可能物件数が
+98
営業時間: 9:00~18:00
定休日: 毎週火曜日・水曜日
NO IMAGE
建物
物件画像
NO IMAGE
周辺環境
QRコードをスキャンして携帯でもご覧になれます。

-

中古一戸建て
1,980万円
    滋賀県大津市日吉台2丁目
    表示住所までのルート

    湖西線 比叡山坂本駅 徒歩 16分 駅までのルート

    NEW現地見学会おすすめ会員限定
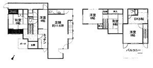
    間取り
    5K
    築年月
    1978年09月完成
    土地面積
    188.42㎡[公簿]
    建物面積
    123.93㎡
    今すぐ会員登録する資料請求お気に入りに追加
    お問い合わせ先: 0120-572-011
    電話でお問合せする
    物件情報
    価格
    1,980万円(税込)
    リフォーム
    なし
    リノベーション
    なし
    所在地
    滋賀県大津市日吉台2丁目
    交通

    湖西線 比叡山坂本駅 徒歩 16分

    間取り
    5K
    建物現況
    完成済
    建物面積
    123.93㎡
    土地面積
    188.42㎡[公簿]
    地目
    宅地
    土地権利
    所有権
    地代
    なし
    築年月
    1978年09月完成
    建物構造
    木造(W)
    建物階建
    2階建
    駐車場
    あり
    都市計画
    市街化区域
    用途地域
    第一種低層住居専用地域
    建ぺい率/容積率
    50%/80%
    セットバック
    なし
    私道負担
    なし
    接道状況
    二方(角地) 北東:幅員11.6m接面幅10.5m公道 幅員6.0m接面幅9.7m公道
    引渡時期
    相談
    物件情報更新日
    2026年01月08日(物件情報更新日より14日以内に更新)
    物件コード
    59162
    取引態様
    仲介
    今すぐ会員登録する資料請求お気に入りに追加
    お問い合わせ先: 0120-572-011
    電話でお問合せする
    森田住宅株式会社
    森田住宅株式会社
    〒520-0846
    滋賀県大津市富士見台2番5号
    0120-572-011
    営業時間:9:00~18:00 定休日:毎週火曜日・水曜日
    ローンシミュレーション
    • {{error}}
    物件価格
    1,980万円
    借入予定額
    万円
    頭金
    万円
    ボーナス(1回分)
    万円
    返済期間
    ローン金利
    金利
    %
    毎月の支払額
    {{repayment_price}} 円
    スマートフォン版の表示に切り替える