建物
物件画像
周辺環境
QRコードをスキャンして携帯でもご覧になれます。
-
中古一戸建て
1,850万円
滋賀県草津市草津3丁目
表示住所までのルート
東海道本線(西日本) 草津駅 徒歩 16分
駅までのルート
NEW
現地見学会
おすすめ
会員限定
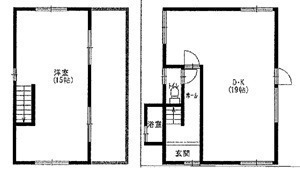
間取り
2LDK
築年月
1973年10月完成
土地面積
122.31㎡[公簿]
建物面積
77.14㎡
今すぐ会員登録する
資料請求
お気に入りに追加
お問い合わせ先: 0120-572-011
電話でお問合せする
すべての画像を見る
印刷
物件情報
価格
1,850万円(税込)
リフォーム
なし
リノベーション
なし
所在地
滋賀県草津市草津3丁目
交通
東海道本線(西日本) 草津駅 徒歩 16分
間取り
2LDK
建物現況
完成済
建物面積
77.14㎡
土地面積
122.31㎡[公簿]
地目
宅地
土地権利
所有権
地代
なし
築年月
1973年10月完成
建物構造
軽量鉄骨造(LGS)
建物階建
2階建
都市計画
市街化区域
用途地域
近隣商業地域
建ぺい率/容積率
80%/160%
国土法の届出
不要
地勢
平坦
セットバック
あり
私道負担
なし
接道状況
二方 北:幅員2.3m公道 東:幅員1.8m私道
引渡時期
相談
物件情報更新日
2026年04月12日(物件情報更新日より14日以内に更新)
物件コード
60457
取引態様
仲介
閉じる
今すぐ会員登録する
資料請求
お気に入りに追加
お問い合わせ先: 0120-572-011
電話でお問合せする
森田住宅株式会社
〒520-0846
滋賀県大津市富士見台2番5号
0120-572-011
営業時間:9:00~18:00 定休日:毎週火曜日・水曜日
アクセスマップ
お問い合わせ
ローンシミュレーション
{{error}}
物件価格
1,850万円
借入予定額
万円
頭金
万円
ボーナス(1回分)
万円
返済期間
1年
2年
3年
4年
5年
6年
7年
8年
9年
10年
11年
12年
13年
14年
15年
16年
17年
18年
19年
20年
21年
22年
23年
24年
25年
26年
27年
28年
29年
30年
31年
32年
33年
34年
35年
36年
37年
38年
39年
40年
41年
42年
43年
44年
45年
46年
47年
48年
49年
50年
ローン金利
直接入力
金利
%
この条件で試算する
毎月の支払額
{{repayment_price}} 円
一部、完成後1年以上を経過した未入居物件が新築物件として掲載される場合がございます。
敷地権利が定期借地権のものは価格に権利金を含みます。
完成予想図はいずれも外構、植栽、外観等実際のものとは多少異なる場合がございます。
CG合成の画像の場合、実際とは多少異なる場合がございます。
図面と現況が異なる場合には現況を優先いたします。
地積、建物床面積、仕様に変更が生じる場合がございます。
物件情報は最新のものをご提供させていただきますが、万一売約済の場合はご容赦ください。
建築条件付土地の販売は、売買契約後一定期間内に売主との間で建築請負契約を結ぶことが条件となり、この期間内に建築請負契約が成立しない場合は、受領金を全額返済した上で土地売買契約は白紙となります。
掲載物件の取引態様が「仲介」「一般」「専属」「専任」となっているものは、ご成約の際に規定の手数料及びそれに係わる消費税を別途申し受けます。
間取り表示のSはサービスルーム(納戸)の略称です。WICはウォークインクローゼット、DENは書斎の略称です。
参考プランは、土地の購入者の設計プランの参考に資するための一例であって、参考プランを採用するか否かは土地購入者の自由な判断に委ねられます。
パソコン版の表示に切り替える
会員登録
資料請求
TEL
LINE
お気に入り
一覧